宝蒂塑料--专业制造 塑料阀门系列、塑料管道系列
语言
德彩网

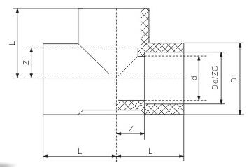
德彩网CPVC、UPVC、FRPP、PVDF、PPH 三通
数据正在更新。 请联系我们的销售以获取更多详细信息!
DN(mm) 公称通径 |
D1 |
De |
D |
Z6 |
L |
Z |
|
15 |
28 |
20 |
18 |
1/2" |
27 |
11 |
|
20 |
33 |
25 |
23 |
3/4" |
32.5 |
13.5 |
|
25 |
40 |
32 |
29 |
1" |
39 |
17 |
|
32 |
50 |
40 |
36 |
l l/4" |
47 |
21 |
|
40 |
62 |
50 |
45 |
11/2" |
57 |
26 |
|
50 |
75 |
63 |
57 |
2" |
70.5 |
32.5 |
|
65 |
90 |
75 |
67 |
|
82.5 |
38.5 |
|
80 |
105 |
90 |
82 |
|
97 |
46 |
|
100 |
125 |
110 |
100 |
|
117 |
56 |
|
125 |
160 |
140 |
126 |
|
147 |
71 |
|
150 |
180 |
160 |
145 |
|
167 |
81 |
|
200 |
245 |
225 |
203 |
|
233 |
114 |
|
250 |
306 |
280 |
255 |
|
180 |
|
|
300 |
348 |
315 |
305 |
|
222 |
|