德彩网宝蒂塑料--专业制造 塑料阀门系列、塑料管道系列
语言

CPVC、OPV、束接
德彩网数据正在更新。 请联系我们的销售以获取更多详细信息!
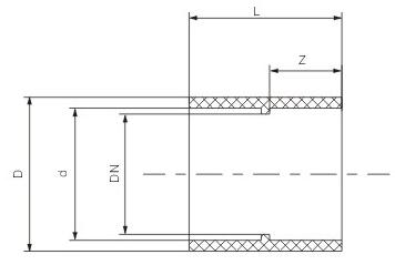
| 公称通径DN(mm) |
德彩网DN(mm) 公称外径 |
外形尺寸 (mm) |
|||||||||
| D |
d |
L |
Z |
||||||||
|
15 |
20 |
26 |
20 |
28 |
16 |
||||||
|
20 |
25 |
32 |
25 |
34 |
20 |
||||||
|
25 |
32 |
40 |
32 |
41 |
22 |
||||||
|
32 |
40 |
50 |
40 |
49 |
27 |
||||||
|
40 |
50 |
61 |
50 |
60 |
31 |
||||||
|
50 |
63 |
75 |
63 |
76 |
38 |
||||||
|
65 |
75 |
88 |
75 |
83 |
44 |
||||||
|
80 |
90 |
105 |
90 |
97 |
51 |
||||||
|
100 |
110 |
127 |
110 |
117 |
61 |
||||||
|
125 |
140 |
160 |
140 |
150 |
75 |
||||||
|
150 |
160 |
185 |
160 |
172 |
90 |
||||||
|
200 |
225 |
253 |
225 |
230 |
110 |
||||||
|
250 |
280 |
310 |
280 |
280 |
140 |
||||||
|
300 |
315 |
350 |
315 |
340 |
150 |
||||||
|
350 |
355 |
391 |
355 |
370 |
182 |
||||||
|
400 |
400 |
431 |
400 |
417 |
205 |
||||||
|
450 |
450 |
495 |
450 |
480 |
231 |
||||||
|
500 |
500 |
540 |
500 |
535 |
256 |
||||||
|
600 |
630 |
678 |
630 |
670 |
321 |
||||||